4704 Coral Lake Drive, BRADENTON, FL 34210
  • MLS#: A4670628 ( Residential )
  • Street Address: 4704 Coral Lake Drive
  • Viewed: 27
  • Price: $799,900
  • Price sqft: $312
  • Waterfront: Yes
  • Wateraccess: Yes
  • Waterfront Type: Canal - Freshwater,Freshwater Canal w/Lift to Saltwater Canal
  • Year Built: 1988
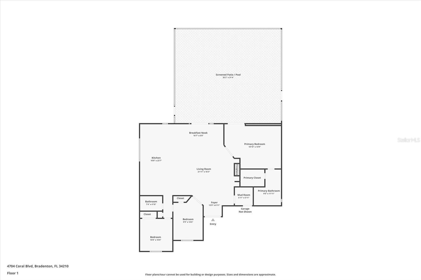
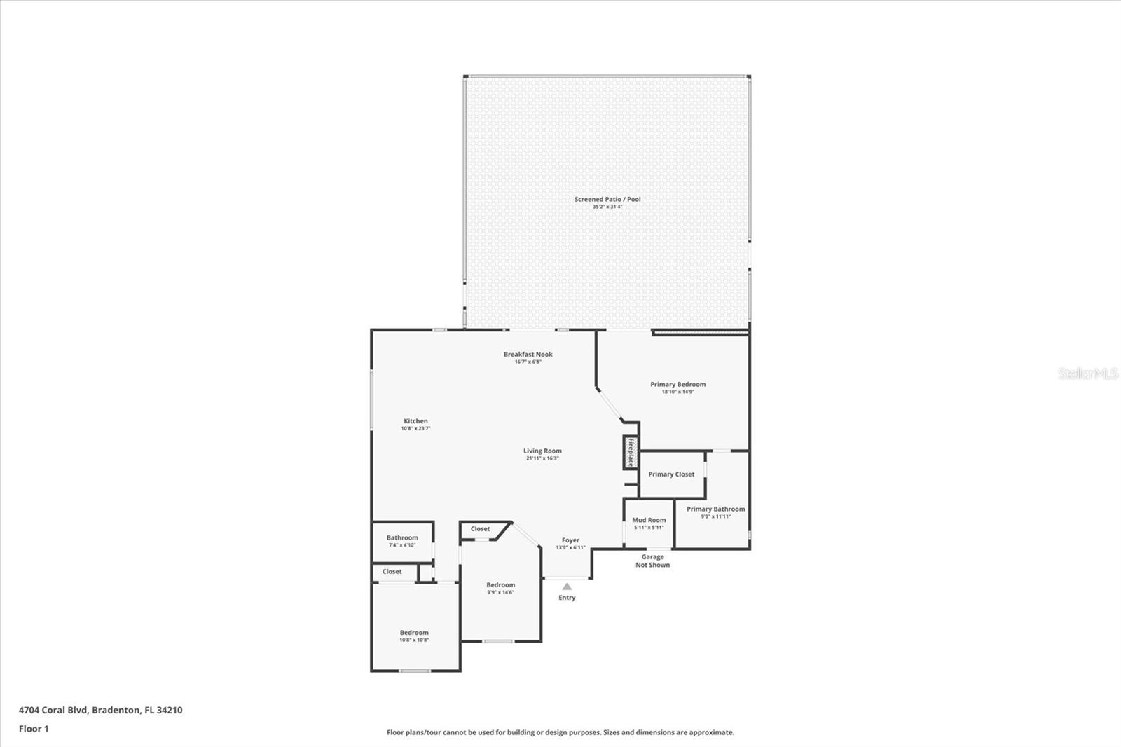
  • Bldg sqft: 2563
  • Bedrooms: 3
  • Total Baths: 2
  • Full Baths: 2
  • Garage / Parking Spaces: 2
  • Days On Market: 13
  • Additional Information
  • Geolocation: 27.4575 / -82.6521
  • County: MANATEE
  • City: BRADENTON
  • Zipcode: 34210
  • Subdivision: Coral Shores East
  • Provided by: PREFERRED SHORE LLC
  • Contact: Kari Sellers Jensen
  • 941-999-1179
  • mfrmls
  • DMCA Notice
  • Description
    One or more photo(s) has been virtually staged. Welcome to Paradise Found! This rarely available, fully updated waterfront canal pool home is nestled in the highly sought after, beautifully manicured, tree lined boating community of Coral Shores East. Designed for both elegance and entertainment, this open concept residence offers soaring vaulted ceilings, expansive travertine tile flooring, and a bright, inviting layout that captures the essence of Floridas coastal lifestyle. Step through the breezeway entry and double front doors into a spacious living area perfect for gathering with family and friends. The chef inspired kitchen features top of the line stainless steel appliances, a built in wine fridge, dual tap kegerator, and a Jenn Air cooktop on a large granite islandall complemented by rich, warm cabinetry and thoughtful lighting details. Every room reflects meticulous attention to detail, from custom built ins on the featured wood burning fireplace wall with designer finishes to the elegant French doors that open to your private outdoor oasis. The covered patio and heated pool are the perfect backdrop for outdoor livingwhether lounging, dining al fresco, or soaking up the Florida sunshine. For the boating enthusiast, this home is truly exceptional. Situated on a freshwater canal with private, locked homeowner access, youll enjoy no tidal fluctuations, reduced saltwater corrosion, and a tranquil, low maintenance waterfront environment. A modern, updated jib lift system provides quick and easy access to the open saltwater canalsallowing you to boat, fish, or kayak your way to the Intracoastal Waterway and azure blue waters of the Gulf in just minutes. Recent upgrades provide comfort and peace of mind: New roof New pool cage New AC system Hurricane rated garage door, shutters, windows, and doors Freshly painted exterior. Meticulously maintained and has never experienced any flooding from past hurricanes. Ideally located just minutes from Anna Maria Island, Longboat Key, St. Armands Circle, pristine Gulf beaches, IMG Academy, and top rated restaurants, golf, shopping, and SRQ/Bradenton Airportthis home offers the very best of Florida living. Dont miss this rare opportunity to own one of Coral Shores Easts most desirable propertieswhere luxury, privacy, and boating convenience come together perfectly. Schedule your private showing today and make your waterfront dream a reality!
Request More Information
  • All fields are required.
Features
Waterfront Description
  1. Canal - Freshwater
  2. Freshwater Canal w/Lift to Saltwater Canal
Appliances
  1. Built-In Oven
  2. Convection Oven
  3. Cooktop
  4. Dishwasher
  5. Disposal
  6. Dryer
  7. Electric Water Heater
  8. Microwave
  9. Refrigerator
  10. Washer
  11. Wine Refrigerator
Home Owners Association Fee
  1. 800.00
Association Name
  1. Ann Hartley/Premium Resource
Association Phone
  1. 941-359-4876
Carport Spaces
  1. 0.00
Close Date
  1. 0000-00-00
Cooling
  1. Central Air
Country
  1. US
Covered Spaces
  1. 0.00
Exterior Features
  1. French Doors
  2. Hurricane Shutters
  3. Lighting
  4. Outdoor Shower
Flooring
  1. Travertine
Furnished
  1. Unfurnished
Garage Spaces
  1. 2.00
Heating
  1. Electric
Insurance Expense
  1. 0.00
Interior Features
  1. Built-in Features
  2. Cathedral Ceiling(s)
  3. Ceiling Fans(s)
  4. Eat-in Kitchen
  5. High Ceilings
  6. Kitchen/Family Room Combo
  7. Primary Bedroom Main Floor
  8. Solid Wood Cabinets
  9. Split Bedroom
  10. Stone Counters
  11. Thermostat
  12. Vaulted Ceiling(s)
  13. Walk-In Closet(s)
  14. Window Treatments
Legal Description
  1. LOT 71 CORAL SHORES EAST SUB UNIT IV
  2. ALSO: BEG AT THE NW COR OF LOT 71 OF SD CORAL SHORES EAST SUB; TH FROM SD POB SWLY ALG THE WLY LN OF SD LOT 71 ON A CURVE TO THE RIGHT
  3. AN ARC DIST OF 6.14 FT
  4. SD CURVE HAVING A RAD OF 200 FT
  5. A C/A OF 01 DEG 45 MIN 35 SEC AND A CHORD WHICH BEARS S 41 DEG 34 MIN 45 SEC W A DIST OF 6.14 FT TO A PT OF REVERSE CURVE; TH
Levels
  1. One
Living Area
  1. 1708.00
Lot Features
  1. Landscaped
Area Major
  1. 34210 - Bradenton
Net Operating Income
  1. 0.00
Occupant Type
  1. Vacant
Open Parking Spaces
  1. 0.00
Other Expense
  1. 0.00
Parcel Number
  1. 7656803926
Pets Allowed
  1. Yes
Pool Features
  1. Fiberglass
  2. Heated
  3. In Ground
  4. Screen Enclosure
Property Type
  1. Residential
Roof
  1. Shingle
Sewer
  1. Public Sewer
Tax Year
  1. 2024
Township
  1. 35S
Utilities
  1. Cable Available
  2. Electricity Connected
  3. Public
  4. Underground Utilities
  5. Water Connected
View
  1. Water
Views
  1. 27
Virtual Tour Url
  1. https://cmsphotography.hd.pics/4704-Coral-Lake-Dr-1/idx
Water Source
  1. Public
Year Built
  1. 1988
Zoning Code
  1. R1ARVR
Liked Listings
Headshot for Associate Michelle Hill
  1. Michelle Hill, ABR,AHWD,PA,PSA,REALTOR ®,SFR
  2. Tropic Shores Realty
  3. Mobile: 352.247.2177
  4. 229.834.4988